Appartement à OPHEYLISSEM (1357)

275.000 €

Description
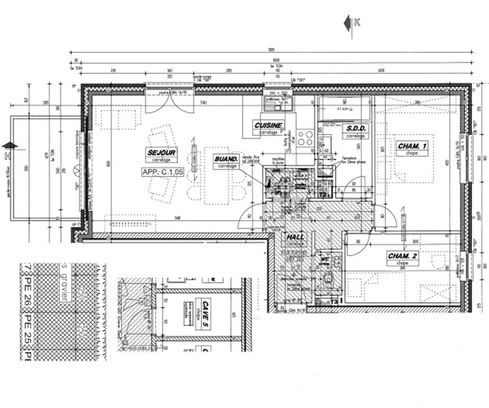
AGREABLE APPARTEMENT RECENT 2 CHAMBRES situé au 1er étage, composé d'un hall d’entrée, living/séjour, cuisine ouverte entièrement équipée et meublée , salle de bains (douche italienne et meuble évier), toilette et buanderie/chaufferie. Terrasse ensoleillée, cave privative, 2 emplacements de parking extérieurs. Equipé d’un chauffage central au gaz de ville, châssis PVC double vitrage, parlophone, ascenseur, local vélos/poubelles,… SITUE DANS UN CADRE CAMPAGNARD et A PROXIMITE DES AXES AUTOROUTIERS - A DECOUVRIR
Informations financières
Certificat energétique
PEB No.20220323502116
E spec
:
83 kWh/m².an
E totale
:
6.852 kWh/an
Emission CO2
:
16 Kg CO2/m².an


Mentions legales
Droit de préemption possible
:
Pas encore demandé(e)
Permis de bâtir obtenu
:
Pas encore demandé(e)
Citation pour infraction urbanistique
:
Pas encore demandé(e)
Autorisation de lotissement
:
Pas encore demandé(e)
Affectation
:
Pas encore demandée
Héritages
:
Non
Confort/Equipements
Chauffage
:
C.C. au gaz
Type de toit
:
Non communiqué
Ascenseur
:
Oui
Cuisine
:
Entièrement équipée
Vitrage
:
Double
Type de vitrage
:
pvc
Composition
Hall d'entrée
:
2,9 m²
Living
:
26,1 m²
Cuisine équipée
:
4,7 m²
Salle de bains 1
:
6,6 m²
Chambre à coucher 1
:
13,0 m²
Chambre à coucher 2
:
6,9 m²
Buanderie
:
1,6 m²
Terrasse
:
8,2 m²
Charges
Provision
:
0 €
Général
Prix
:
275.000 €
Revenu cadastral
:
661 €
Nombre de Chambre(s)
:
2 chr
Nombre de salle(s) de douche
:
1
Adresse
:
Rue Eugène-Branckotte 52, 1357 OPHEYLISSEM
Superficie totale
:
83 m²
Année de construction
:
2021
Carte Google
Street view